
Teräsrakenteen kourut ovat ratkaiseva komponentti rakennuksen katon viemärijärjestelmässä. Niiden ensisijainen tehtävä on kerätä sadevettä katosta, ohjata se pystysuoraan putkiin ja purkaa se sitten ulkoviemärijärjestelmään estäen sitä suoraan hajottamasta seiniä tai liottavia säätiöitä. Liweiyuanin tuotesuunnittelulle ja asennukselle on ominaista suuri lujuus ja kevyt, mikä varmistaa sileän viemärin ja poikkeuksellisen kestävyyden.
Teräsrakenteen kourut ovat ratkaiseva komponentti rakennuksen katon viemärijärjestelmässä. Niiden ensisijainen tehtävä on kerätä sadevettä katosta, ohjata se pystysuoraan putkiin ja purkaa se sitten ulkoviemärijärjestelmään estäen sitä suoraan hajottamasta seiniä tai liottavia säätiöitä. Liweiyuanin tuotesuunnittelulle ja asennukselle on ominaista suuri lujuus ja kevyt, mikä varmistaa sileän viemärin ja poikkeuksellisen kestävyyden.
Liweiyuanin teräsrakenteen kouru on valmistettu korroosiosta kestävistä ja iskunkestävistä materiaaleista.
Tuotteemme on kuumassa galvanoitu, ja se tarjoaa erinomaisen korroosionkestävyyden, edulliset kustannukset ja pitkä käyttöikä. Saatavana 1,5–2,5 mm paksuus, se sopii useimpiin sovelluksiin.
Ruostumattomasta teräksestä valmistettu tuote tarjoaa korroosionkestävyyttä ja sopii erityisesti rannikko- tai kosteisiin ympäristöihin. Saatavana paksuus 1,0–2,0 mm, se tarjoaa korkeamman hinnan, mutta pitkän käyttöiän.
Väripäällystetyt terästuotteemme perustuvat galvanoituun teräkseen, joka on päällystetty säänkestävällä pinnoitteella, kuten polyesterillä tai fluorihiilivedellä, sekä korroosionkestävyyden että koristeellisten vaikutusten suhteen. Saatavana 1,2–2,0 mm: n paksuus, ne sopivat rakennuksiin, jotka vaativat korkeaa esteettistä vetovoimaa.
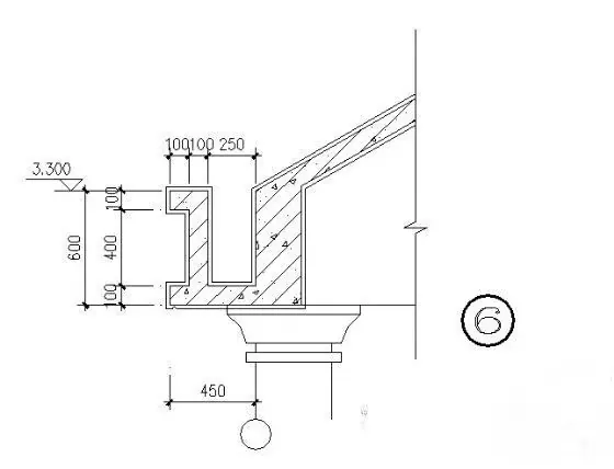
Teräsrakenteen kourun rakennemuoto on mukautettava katon kaltevuuteen ja räystäisiin suunnitteluun. Yleisiä tyyppejä ovat U-muotoinen ja V-muotoinen. Asennusprosessi on seuraava:
Teräsrakenteen kourut käyttävät kulman teräskourukiinnikkeitä kiinnittämään ne teräsrakenteen räystäisiin säteisiin tai purppiin. Kiinnitysväli on 600-1000 mm tasaisen stressin jakautumisen varmistamiseksi kourun läpi.
Valmiit kourut ovat esikokoisia ja kytkettyjä paikan päällä liittimien tai hitsauksen avulla. Tiivisteaine vaaditaan kourun ja kattokannen välisessä risteyksessä.
Voimme asentaa vilkkuvan kattokannen yläpuolelle. Kourun alaosa tulisi sijoittaa kattokannen alapuolelle ja sinetöityä tiivisteellä. Vuorausreiät tulee toimittaa kourun pohjassa, pääasiassa sadeveden nousevien kytkemiseksi.
Teräsrakenteen kourujen valmistusprosessiin sisältyy leikkaaminen piirustuksen mitat, taivutus, maalaus, lopputuotteen tarkastus, pakkaus ja kuljetus. Liweiyuanin teräsrakenteen kourut on suunniteltu ja asennettu korroosionkestävyyden, sileän tyhjennysten ja kestävyyden varmistamiseksi, mikä varmistaa tehokkaan viemärin.